Call Today: (615) 242-1212
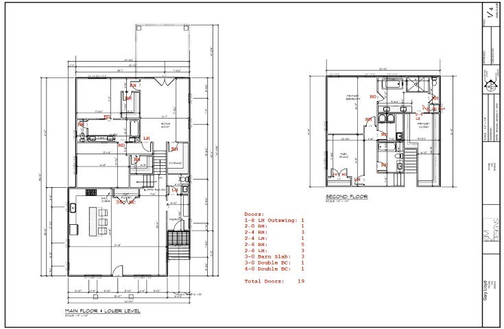
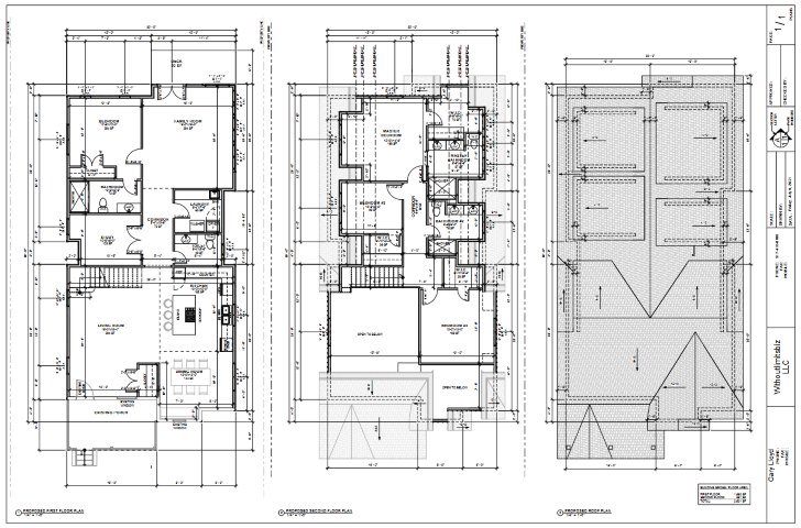
Projects
A look at some of our work serving Nashville, TN and the surrounding areas for over a decade.
Commercial
Residential








